Panoramica
- Aggiunto il:
- 20/03/2026
- 2 Camere da letto
- 1 Bagni
- 120 m2
Descrizione
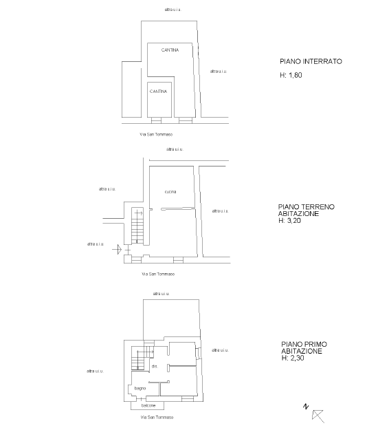
Nel suggestivo borgo di Corte, a soli 3 km da Molini di Triora e dai principali servizi (negozi, bar e ristoranti), proponiamo in vendita casa cielo-terra di circa 120 mq.
Caratteristiche principali:
Tipica casa nel centro storico, ricca di fascino e autenticità
Superficie di circa 120 mq
Struttura su due livelli collegati da una scala interna, con spazi ben distribuiti
Cantina di proprietà
Condizioni:
L’immobile si presenta in condizioni discrete e necessita di lavori di ristrutturazione, perfetto per chi desidera personalizzare gli spazi e valorizzare il carattere originale della casa.
Ideale per chi ama la tranquillità, la natura e i borghi liguri, perfetta come seconda casa o investimento.
Posizione riservata ma a pochi minuti da tutti i servizi essenziali.
Contattaci per maggiori informazioni o per fissare una visita!




























