See all 19 photos
Panoramica
- Aggiunto il:
- 01/10/2025
- 20 m2
Descrizione
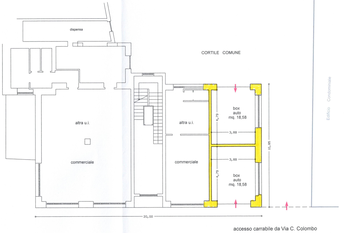
In posizione centrale e comoda a tutti i servizi proponiamo in vendita due box auto di 20 mq ciascuno, di nuova costruzione, con accesso facilitato grazie all’ampio ingresso di 295 cm e altezza interna di 385 cm.
Entrambi i box sono dotati di serranda elettrica e comodo ingresso carrabile; uno dei due, situato nella parte posteriore e accessibile tramite sbarra, dispone inoltre di punto acqua con lavandino.
Soluzione ideale per chi cerca spazi comodi, sicuri e moderni per auto, moto o uso magazzino.
Property Id: 27056
Prezzo: Cad. €80.000
Dimensione: 20 m2
Area: 18 m2
Vani: 1
Riferimento immobile: BOX80
Lun
25
Mag
Mar
26
Mag
Mer
27
Mag
Gio
28
Mag
Ven
29
Mag
Sab
30
Mag
Dom
31
Mag
Lun
01
Giu
Mar
02
Giu
Mer
03
Giu
I tuoi dati
Recensioni
No reviews found.
You need to login in order to post a review
Immobili simili
Vendita
Buone condizioni
Box auto Arma di Taggia
€50.000
Arma di Taggia, Ampio box auto di 50 Mq. comodo per qualsiasi tipologia di autoPer maggior ...
50 m2details






















